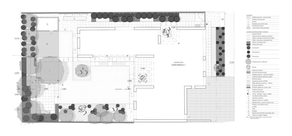
edelstal I
_ záhrada rodinného domu
projekt _ 2019 >> realizácia _ 2020
stupeň projektovej dokumentácie _ ideová štúdia _ drs
lokalita _ rakúsko
autori krajinnej architektúry _ Ing. Anna Kolčiterová, Ing. Žofia Polláková
foto _ Ing. Anna Kolčiterová











edelstal I
_ záhrada rodinného domu
projekt _ 2019 >> realizácia _ 2020
stupeň projektovej dokumentácie _ ideová štúdia _ drs
lokalita _ rakúsko
autori krajinnej architektúry _ Ing. Anna Kolčiterová, Ing. Žofia Polláková
foto _ Ing. Anna Kolčiterová










